Deze website maakt gebruik van cookies

Deze website gebruikt cookies en verzamelt daarmee informatie over het gebruik van de website onder andere om deze te analyseren en te verbeteren en voor social media. Wil je meer weten over deze cookies, lees dan onze privacy disclaimer en de uitleg over cookies
Door hiernaast op "Akkoord" te drukken, geef je aan akkoord te zijn met het gebruik van cookies en het verzamelen van informatie aan de hand daarvan door ons en door derden. Wil je niet alle soorten cookies toestaan, klik dan op "Cookie instellingen aanpassen".

Karspeldreef 16B218
Nieuw!
Terug

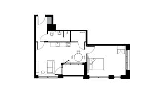
Karspeldreef 16B218 1101 CK Amsterdam

Huurprijs € 1.306,- p/m

Kenmerken

Huurprijs € 1.306,- p/m
Bouwvorm Nieuwbouw
Bouwjaar 2025
Woonoppervlakte 55 m²
Type woning galerijflat
Servicekosten € 0,- p/m
Aantal kamers 2

Locatie

Locatie naar boven

U vertrekt vanaf

Toon route